 |
Építészeti tervezés 3. - BSc harmadik évfolyam - 2020ősz
Zombor műterem
oktatók:
Skrabák Zoltán _ Zombor Gábor
hallgatók:
Bacskay Botond _ Kerti Ábrahám Szilveszter _ Kiss Katalin Kitti _ Korhán Marcell Csaba _ Kovács Barnabás _ Lakatos Kitti _ Pap Martin _ Papp László Róbert _ Skrabák Julianna _ Szegény Roland
|
|
Első feladat
megkötés
Az 1. feladat során egy meglévő épület terében készült képből kiindulva, mint megkötés, épületet terveztek a hallgatók fiktív helyszínre. A kép mögötti tér-tömeg meghatározása tervezési feladat volt. A funkció igazodott a léptékhez, ezt a tervezés során szem előtt kellett tartani. A harmadévesek közösségi-funkcióban gondolkodtak. A belső kép volt tehát a kiindulópont. Végül a kontextust a tervezett épület tulajdonságai alapján határoztuk meg, ami egy izgalmas fordított játék, mely alapján minden terv akár más-más környezetbe volt beültethető (városi sűrű beépítés, természeti környezet, stb.).
|
|
|
| Válogatás az elkészült munkákból |
|
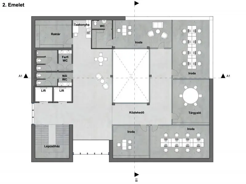
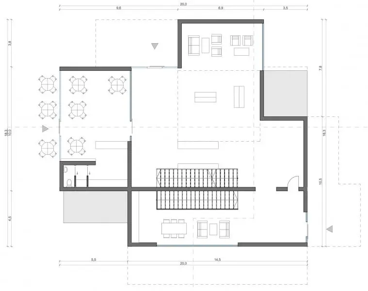
Második feladat
megkötés
A 2. feladat során egy meglévő épület külső tömegéről készült képből kiindulva, mint megkötés, épületet terveztek a hallgatók újra fiktív helyszínre. Ezúttal a tömegen belüli tér-struktúra meghatározása és adaptálása volt a tervezési feladat, közösségi-funkciójú épülethez. A kontextust a tervezett épület tulajdonságai alapján határoztuk meg.
|
|
|
| Válogatás az elkészült munkákból |
| |
 |
 |
| |
 |
 |
| |
 |
 |
 |
 |
|
|
Harmadik feladat
foghíj
A 3. feladat alkalmával kiválasztott helyszínek Debrecen belvárosi lakóövezetében található foghíj telkek, melyeket a szomszédos két lakóingatlan tűzfalai vesznek körül. A tűzfalak szorításában kialakuló telek izgalmas építészeti feladatot jelentett mind a tűzfalakkal történő kommunikáció, mind a szabadon maradó telekrészek kialakítása miatt. Két tervezési helyszín lett kiosztva a hallgatók között: az egyik egy szűkebb, többszintes beépítést lehetővé tévő telek, a másik egy szélesebb, alacsonyabb beépítést tesz lehetővé. A feladat ezen a turisztikai szempontból is kiemelten fontos területeken, egy hívogató, a közterületek felé megfelelő kapcsolatokkal rendelkező középület létrehozása volt. A tervezés folyamán a funkcionális szempontok érvényesítése mellett kiemelt figyelmet kellett fordítani a telekhasználatra. A beépítés során törekedni kellett a meglévő utcakép és a tervezett utcai homlokzat harmonikus kapcsolatára. A környék zártsorú beépítésének sűrűsége lehetővé tette, hogy többszintes kialakításban is gondolkodhassunk.
|
|
|
| Válogatás az elkészült munkákból |
Legutóbbi frissítés:
2023. 10. 09. 08:10