![]() |
Komplex tervezés 2. - MSc második évfolyam _ 2020ősz oktatók: hallgatók: |
|
Feladat |
|
|
| Válogatás az elkészült munkákból |
|
Bajusz Boglárka |
|
A koncepció középpontjában az épülethez csatlakozó külső terek megújítása állt. A funkció keresése során figyelembe vettem, hogy az épület a belváros és a lakóövezet határán helyezkedik el, így mindenképp olyan közösségi funkciókkal szerettem volna ellátni, melyek képesek csökkenteni ezt a feszültséget, és kiszolgálják a gyermek korosztálytól kezdve akár az egész család igényeit. Az épület középső traktusának földszinti kibontását leszámítva az épületen belül jelentős változás nem történt, kizárólag a válaszfalak jelentős részének bontása által egyszerűsödött, és vált logikusabbá az elrendezés. Az épület 2 belső udvara és a főút felőli térrész 1-1 új objektum által megújult. Az utcafrontra egy figyelemfelkeltő, absztrakt előtető és lépcső került, mely funkcionálisan a 2. emeleti szintre vezeti a látogatót. A Domb utca felől az épületegyüttesbe lépve egy nagy tölcsér fogadja a látogatókat, mely kiemelt bejáratként, emellett közösségi pihenőtérként funkcionál. Egy időszakos színpaddal kiegészülve az udvar alkalmas előadások megtartására, melyek esetén a tölcsér lelátóként funkcionál. A belső udvarok a középső épületrész földszinti bontása által összekapcsolódnak, és a megnyíló hátsó udvar egy nagy teraszként funkcionálva szolgálja ki a közösséget. |
![]() |
![]() |
![]() |
![]() |
![]() |
![]() |
![]() |
![]() |
|
Czirják Róbert |
|
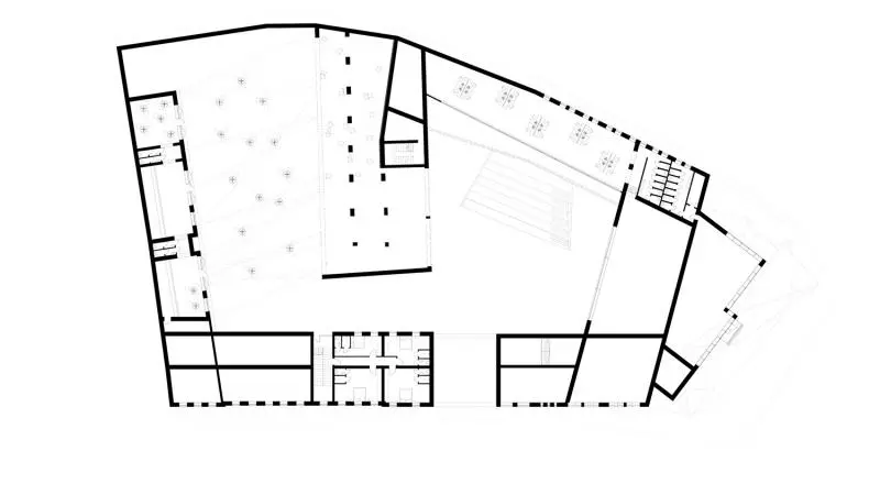
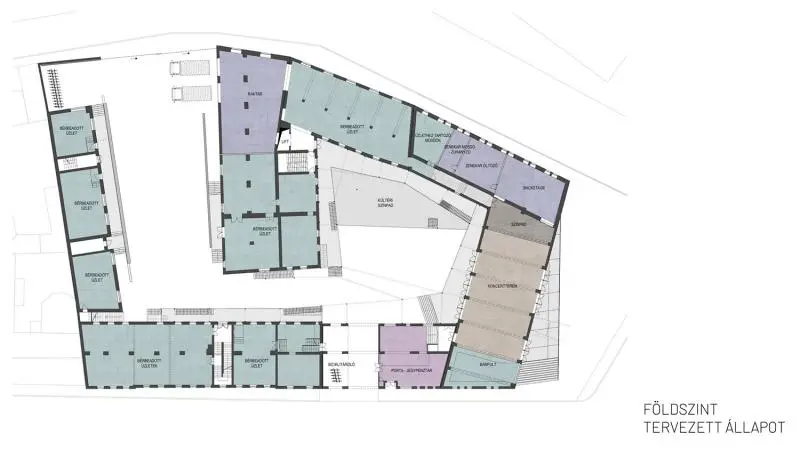
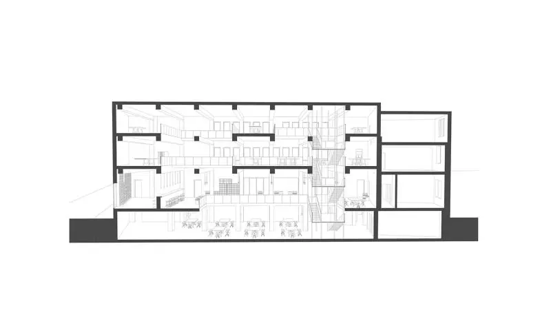
Az egykori ruhagyár épülete a belváros peremén, a kiskörút mellett helyezkedik el. Ezen a területen már nem a korzó hangulat és a fényűző miliő a jellemző. A ruhagyár jelenleg sok, belvárosból kiszorult funkciónak ad helyet: táncstúdió, edzőterem, játszóház, lövészpálya stb. Az épület peremterületen való elhelyezkedése miatt egy alternatív, underground központot alakítottam ki benne, ami a KAPTÁR nevet kapta (az épületben lévő kultikus klub után, és az épület belső udvarának kialakítására utalva). Az épület átformálása dekonstruktív felfogásban történt, ami kifejezi az underground kultúra életérzését. Az épület legfőbb szervezőeleme a belső udvarban kialakított körfolyosó szerű épületelem, amely egy expresszív formálású tetővel lett lefedve. A szintek közötti közlekedés és az üzletek elérése is erről a folyosórendszerről történik. A belső udvar koncertudvarként is, a körfolyosó pedig lelátóként is funkcionál. A körfolyosó és annak lefedése a meglévő épület anyaghasználatától eltérően acél szerkezetből van kialakítva, így az új és a régi épületelemek jól elkülöníthetőek. Az acél szerkezet néhány helyen „kitüremkedik” az utca irányába a meglévő épületen keresztül. A pinceszinten zenestúdió és próbatermek kapnak helyet. Ezeknél a funkcióknál nincs szükség nagy méretű bevilágító ablakokra. Ezek a pincehelységek a körfolyosó alatt kialakított fedett nyitott folyosóra nyílnak. A Burgundia felőli épületrészben beltéri koncertterem kap helyet és az ezt kiszolgáló backstage, bárpultok stb. Ezeken kívül az épület legtöbb helyiségének nem lett kijelölve konkrét funkció. Ezek olyan üzleteknek lennének fenntartva, amelyek az underground kultúrához kapcsolódnak: gördeszkabolt, tetoválószalon, hangszerbolt, lemezbolt, kocsmák stb. |
![]() |
![]() |
![]() |
![]() |
![]() |
![]() |
![]() |
![]() |
|
Gazdag Olivér |
|
Az egykori ruhagyár épülete, viszonylag frekventált területen helyezkedik el. Egyik oldalról a zajos és forgalmas Burgundia utca, míg a másik oldalról csendesebb lakóövezet határolja. A célom az épülettel egy olyan komplexum létrehozása, ahol a zenészek illetve egyéb szórakoztató ipari emberek nem csak dolgozhatnak, hanem a szádidejüket is eltölthetik itt. Úgy képzelem, hogy egy olyan hely lehet, ahol egy zenei előadó vagy zenekar összeáll, egy felvétel, egy album vagy akár egy klip forgatás erejéig. A csendesebb Domb utcai épületszárnyba bérelhető apartmanok kaptak helyet, amelyek ideiglenes vagy hosszútávú szállást nyújthatnak az ide érkezőknek. A Monti ezredes utca oldali szárnyba kapnak helyet a szintén bérelhető stúdiók illetve irodák. Ezt a két épületet köti össze az épület legfontosabb része, ami egy összes szintet átkaroló közösségi tér. A pinceszinten és a földszinten ez egy kocsmát jelent, majd felfelé haladva kötetlen munkaállomások helyezkednek el. Ez a tér köti össze több szinten is az apartmanokat a stúdiókkal, valamint födém áttörések révén a kocsma nyüzsgő morajlása is felszivárog ide. Ez a tér testesíti meg azt a célomat, hogy a zenészek ne feladatot vagy munkát lássák a zenélésbe, hanem szabadidős tevékenységként értelmezzék azt. Az épület rendelkezik még két terasszal. A belső udvari terasz kellemes romkocsma hangulatot ébreszt, ez lehet az introvertált személyiségű emberek kedvenc helye az épületben. A másik terasz a Burgundia utcára néz, ez a rész jobban beépül a nyüzsgő város vérkeringésébe. Az épületegyüttes hátsó udvarán egy szabadtér színpad kapott helyett ahol kisebb-nagyobb koncertek esetleg próbák zajlódhatnak. Mivel ez időjáráshoz és évszakhoz kötött tevékenység, ezért ez egy ideiglenes elbontató szerkezet. Összefoglalva a célom az hogy a zeneipar tevékenységeinek jelentős részét belesűrítsem ebbe az épületbe, az írástól a próbákon és a felvételeken keresztül az élő koncertig, úgy, hogy az minél kötetlenebb és ingerekkel gazdagabb legyen. |
![]() |
![]() |
![]() |
![]() |




















