![]() |
Építészeti tervezés 3. - BSc harmadik évfolyam - 2020ősz oktatók: hallgatók: |
|
Első feladat |
|
|
| Válogatás az elkészült munkákból |
|
Gyetkó Rebeka |
|
|
|
|
![]() |
![]() |
![]() |
![]() |
![]() |
|
Posta Rebeka |
|
|
![]() |
![]() |
![]() |
![]() |
![]() |
![]() |
![]() |
![]() |
|
Sándor Izráel-Iacob |
|
|
![]() |
![]() |
|
Sike Boglárka |
|
|
![]() |
![]() |
|
Szikszai Laura |
|
|
![]() |
![]() |
![]() |
|
Török Fruzsina |
|
|
![]() |
![]() |
|
Második feladat A másodéveseknek lakó-funkcióban, a harmadéveseknek közösségi-funkcióban kellett gondolkodniuk. |
|
|
| Válogatás az elkészült munkákból |
|
Gyetkó Rebeka |
|
|
|
|
![]() |
![]() |
|
Posta Rebeka |
|
|
![]() |
![]() |
![]() |
![]() |
![]() |
![]() |
|
Szikszai Laura |
|
|
![]() |
![]() |
![]() |
|
Harmadik feladat |
|
|
| Válogatás az elkészült munkákból |
|
Gyetkó Rebeka |
|
A tervezéshez megadott helyszín Debrecenben a Faraktár utcán lett kijelölve. A telek egy egész forgalmas helyen van, a megközelítése szinte minden irányból megtehető akár gyalogosan vagy tömegközlekedéssel is. A környezetében többnyire többlakásos társasházak vannak, de a közelben van egy pár közintézmény is. Ennektudatában úgy döntöttem, hogy valami féle közösségi épületet tervezek. Első gondolatom egy úgymond múzeum volt, ami egyben a közösség számára külön kialakított alkotó termeket is magába foglalt. Második nekifutásra úgy döntöttem,hogy előtérbe helyezzem a közösségi funkciót, így a tereket is úgy alakítottam. Az épület mind tömegében mind belső kialakításban két részre osztható. Az utca felöli részen az előadó termek és az alkotó terek kaptak helyet. A szomszédos telek felől pedig a mellékhelyiségek, közlekedők és a szabadon álló közösségi terek vannak. A külső tömege a belső terekhez igazodva ugyan úgy szétbontható két részre. Külső megjelenésben igazodik a telek határhoz viszont van benne két kiharapás, aminek okai: egyrészt kiemeli a bejáratot, másrész érzékelteti a belső terek két részre való osztását. Ennek tudatában magát a tömeget is úgy alakítottam, hogy afőirányban a földszinten egybefüggő részen az előadótermek a felette lévő szinteken kicsit elfordított tagolt „sávoknál” pedig a termek kaptak helyet. |
![]() |
![]() |
![]() |
![]() |
![]() |
![]() |
|
Nagy Leila |
|
A félév harmadik feladata a Faraktár utcán lévő telekre való középülettervezés volt. Egy fürdőt terveztem a telekre. Maga az épület tömege szinte az egész telket kitölti, csak két kisebb belső udvara van. Maga az egész épület meg van emelve 50 cm-re az utca szintjétől. Tömegében az épület lényege az, hogy a medencéken kívüli részek alacsonyabbak egy egybefüggő lapostetővel. Itt a Faraktárral párhuzamosan az alsó részben vannak az öltözők, illetve a vizesblokkok. Három medencéje van a fürdőnek. Egy nagyobb egybefüggő medence és két kisebb medence, amikmég osztva vannak. Ezek egy-egy „kubusban” vannak, amik kiemelkednek az épület lapostetős része fölé. Mindegyiken félnyereg tető található. |
![]() |
![]() |
|
Posta Rebeka |
|
Első gondolatok
Forma
Összességében célom egy olyan épület volt, ami rész tud venni a gyermekek fejlődési folyamatában, és könnyíti azt. Környezetébe nem hasonlósággal, hanem a beilleszhetőséggel kap helyet. |
![]() |
![]() |
![]() |
![]() |
![]() |
![]() |
![]() |
|
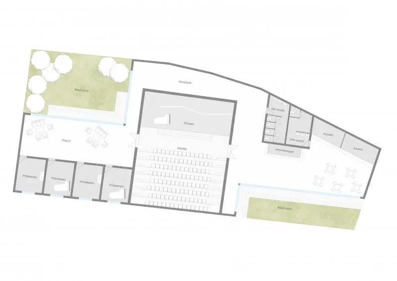
Sike Boglárka |
|
Zeneiskola koncetteremmel Ez mind funkciójában, mind pedig kialakításában jobban alkalmazkodik ehhez a környezethez, telekhez. A tervem egy kisebb zeneiskola tervezése volt, amelynek központi magját egy koncertterem alkotja. Az épületet kialakításánál ebben az esetben én szerettem volna kihasználni a telek különlegességét, vagyis, hogy a megszokottól eltérően a hossztengelye az utcával párhuzamos. Mivel az épület fő tere maga a koncertterem ezért ez a rész kiemelkedik az épület többi része közül. Az első feladat során szintén a koncertterem centrális helyen helyezkedett el, és ott se akartam, hogy ez a nagy belmagasságú terem külön épületrész legye, így a melléktereket magába foglaló épületrészek körül ölelték azt. Ennél az épületnél is arra törekedtem, hogy ez a kapcsolat létre jöjjön. A 116 ülőhelyes koncertterem mind a 4 fala teljesen zárt, ezzel szemben viszont a többi tér esetében törekedtem arra, hogy az épület nagy üvegfelületekkel tudjon nyitni a környezete felé. Ez figyelhető meg a 4 zeneterem előtti tágas várakozó térnél, amelyen keresztül egy kis belső udvarra is ki lehet jutni, valamint az épület utcafront felöli részén. Innen keresztül lehet bejutni az épületbe, ez a főbejárat, amely szintén nagy üvegfelülettel nyitja az épületrészt az utca felé. Ebben a térben található az információs pult, kávézó, mosdóhelyiségek és a ruhatár. E két épületrész funkciójában eltér egymástól, mivel a belső udvar felöli rész egy közönségtől elzártabb rész, míg a külső udvari rész teljes mértékben általuk használt rész. A két részt egy zárt folyosó köti össze, amely a színpad mögött található és így kívülről tekintve az épületre teljesen egységet alkot, amiből kiemelkedik a középső koncert termi rész. |
![]() |
![]() |
![]() |
|
Szikszai Laura |
|
A körülbelül 1000m2-es terület teljes egésze beépítésre került. A megnyitás leginkább a Faraktár utcai részre összpontosul. A bejárat a Faraktár és a Baross Gábor utca sarkán található. A földszinti részen kávézó kapott helyet, melyet mosdók és gazdasági iroda egészít ki. Két belső udvar tagolja a teret, melyek közül az egyik megjelenik az első emeleten is. A kávézó egyik csücskében egy csendes olvasósarkot hoztam létre, ahonnan egy külső udvarra is ki lehet menni. Az első emelet folyosós elrendezést kapott. Innen nyílik 8 kisebb-nagyobb iroda és egy tároló helyiség is. Az épület jobboldali szárnyában pedig helyet kapott egy előadóterem. A két udvar is megjelenik ezen a szinten, az egyik egy hasítékként vágja ketté az épületet, és csak egy folyó vezet a kisebb szárnyba, a másikra pedig a folyósóról lehet lelátni. Az első emeletről három lépcső visz tovább a második emeleti 3 különálló blokkba. Ezek közük2 szintén iroda funkciót kapott, a harmadik pedig egy előadóterem. Az Inkubátorház kialakításánál törekedtem arra, hogy minél inkább a városi szövet része legyen az épület. És remélem, hogy mind funkcionálisan, mind beépítettség szempontjából sikerült megtalálnom az aranyközéputat. |
![]() |
![]() |
![]() |
![]() |
![]() |
|
Török Fruzsina |
|
Az idei félév utolsó tervezési feladatának egy már meglévő debreceni területre kellett áttervezni az előző feladatokból már meglévő középületünket. Célom egy olyan hely megalkotása volt, amely a feltörekvő művészeknek adna otthont.Emeletesre terveztem az épületet, ahol két hangsúlyos lépcső segíti a közlekedést. Az épület bejárata mindkét lépcsőnél megtalálható. Az első főlépcsővel megérkezünk a félemeletre, ahol egy kisebb előadó található, amelyben a művészek bemutathatják és megnyithatják a kiállításaikat. A lépcsőn tovább haladva megérkezünk az emeletre, ahol az egész közlekedő a kiállítási helyszínként szolgál, kialakítását nézve végig nyitott. Továbbá itt található három külön nyíló műhely, amelyet a művészek szabadon igénybe vehetnek. Majd, ha a folyosón végig haladunk megérkezünk a másik lépcsőhöz, ami teljesen nyitott és kialakítását tekintvenagy része alkalmas a művek kiállítására vagy éppen ücsörgésre is. Így vissza jutottunk aföldszintre, ahol egy nagy térbe érkezünk, ahol egyik részében egy büfé kapott helyett. Másik fele alkalmas kiállításokra vagy akár egy kisebb együttes koncertjének a befogadására is. Tovább haladva eljuthatunk a vizesblokkokhoz. Összességében egy mozgalmas művésztelepet szerettem volna megalkotni. |
![]() |

























































