![]() |
Építészeti tervezés 1. - BSc második évfolyam - 2020ősz oktatók: hallgatók: |
|
Első feladat |
|
|
| Válogatás az elkészült munkákból |
|
Sólya Marcell |
|
|
![]() |
![]() |
![]() |
![]() |
![]() |
![]() |
|
Tőtős Kriszta |
|
|
![]() |
![]() |
![]() |
![]() |
![]() |
![]() |
|
Második feladat |
|
|
| Válogatás az elkészült munkákból |
|
Sólya Marcell |
|
|
![]() |
![]() |
![]() |
![]() |
![]() |
|
Szilasi László |
|
|
![]() |
![]() |
![]() |
![]() |
![]() |
![]() |
|
Tőtős Kriszta |
|
|
![]() |
![]() |
![]() |
![]() |
![]() |
|
Harmadik feladat |
|
|
| Válogatás az elkészült munkákból |
|
Sólya Marcell |
|
A feladatban egy sziklás tópartra kelletttervezni, ahol a tájjal való kommunikáció volt fő szempont. A nyaraló a tó és a sziklás part között helyezkedik el, próbálja felvenni a sziklák formáit. Az épület közepén egy fa burkolatu folyosómegy végig, ami anyaghasználata az erdővel próbál kapcsolatot teremteni, ebbecsatlakoznak a fő funkciós helyiségek,amiknek nyersbeton felületei vannak. A helyiségek főleg a tópartra nyitnak, ami A nyaralóhoz tartozik egy hajógarázs is, ami egy kisebb csónakot képes eltárolni. |
![]() |
![]() |
![]() |
![]() |
![]() |
![]() |
![]() |
|
Szilasi László |
|
A feladat a képen látható területen, egy hívogató, a természetre reagáló lakóépület létrehozása. A tervezést az épület környezetben való elhelyezésével kezdtem. Megállapítottam, hogy a helyszínt 3 fő részre lehet bontani: Ezzel párhuzamosan lett előttem egy könyvnek a képe; pontosabban a formája. Hiszen a kemény borító védelemmel szolgál, a gerinc része pedig egyfajta lezárása. Az én leendő épületemnek, ha egy könyvhöz hasonlítjuk, a gerincénél lesz a bejárat, hisz a könyvek gerincén feltüntetik a címet, de a valódi izgalmak a két borítólap között találhatóak. Miután megfogant a könyv forma, egy kicsit fakónak, tompának éreztem. Emiatt az épület „gerincét” egy félköríves lezárásra módosítottam, ami lendületet biztosít. Mivel a könyvek valódi értéke a borítók között található, ezért a lakóteret is ilyen szinten igyekeztem ellátni, megvalósítani. |
![]() |
![]() |
![]() |
![]() |
![]() |
![]() |
![]() |
![]() |
![]() |
|
Tőtős Kriszta |
|
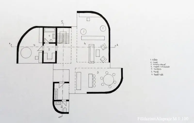
A félév harmadik tervezési feladatának egy igen fontos kiindulási pontját maga a jól meghatározott helyszín adta,hiszen ahogyan a mellékelt képenis látható egy erdei,dombos helyszínről van szó.Az adottságokat figyelembe véve született meg az általam tervezett lakóház is.Az erdő játékos hullámzásába lett beleolvasztva az épület úgy,hogy a lehető legkevesebbet vegye el a természettől és ugyanakkor a lehető legjobbantudjon beleilleszkedni az adott domborzatba.Részben arra törekedtem,hogy a már meglévő erdei út irányát ugyanúgy megtartsam és az épületmegépítése után ne kelljen máshol elvezetni azt,így az épületem úgy lett kialakítva és megtervezve,hogy továbbra is használni lehessen az utat.Alentiekben csatolt képeken megfigyelhető,hogy ennek köszönhetően a lakóház beélt tere el van süllyesztve.Az erdei útról letérve egy lépcsősegítségével tudunk lejutni a lakótérbe,melynek a hatalmas üvegfalnakköszönhetően intenzív kapcsolata van a természettel,környezettel,mégakkor is,ha nincsen egy külön erre szánt terasz.A lakóház maga annak ellenére,hogy egy domb oldalba besüllyesztett épület, egy világos tér.Eza világosság a változatos nyílásoknak,bevilágítóknak köszönhető,így nem keletkezik egy nyomasztó,sötét belső világ. |
|
|
![]() |
![]() |
![]() |
![]() |
![]() |
![]() |
![]() |
![]() |
![]() |
![]() |





















































